CREMA CENTRO IMPERDIBILE!!!! NUOVA COSTRUZIONE IN CLASSE A
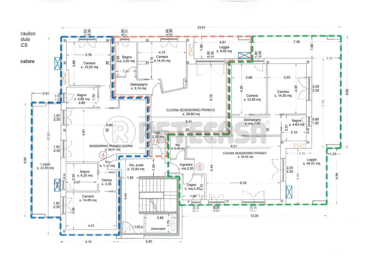
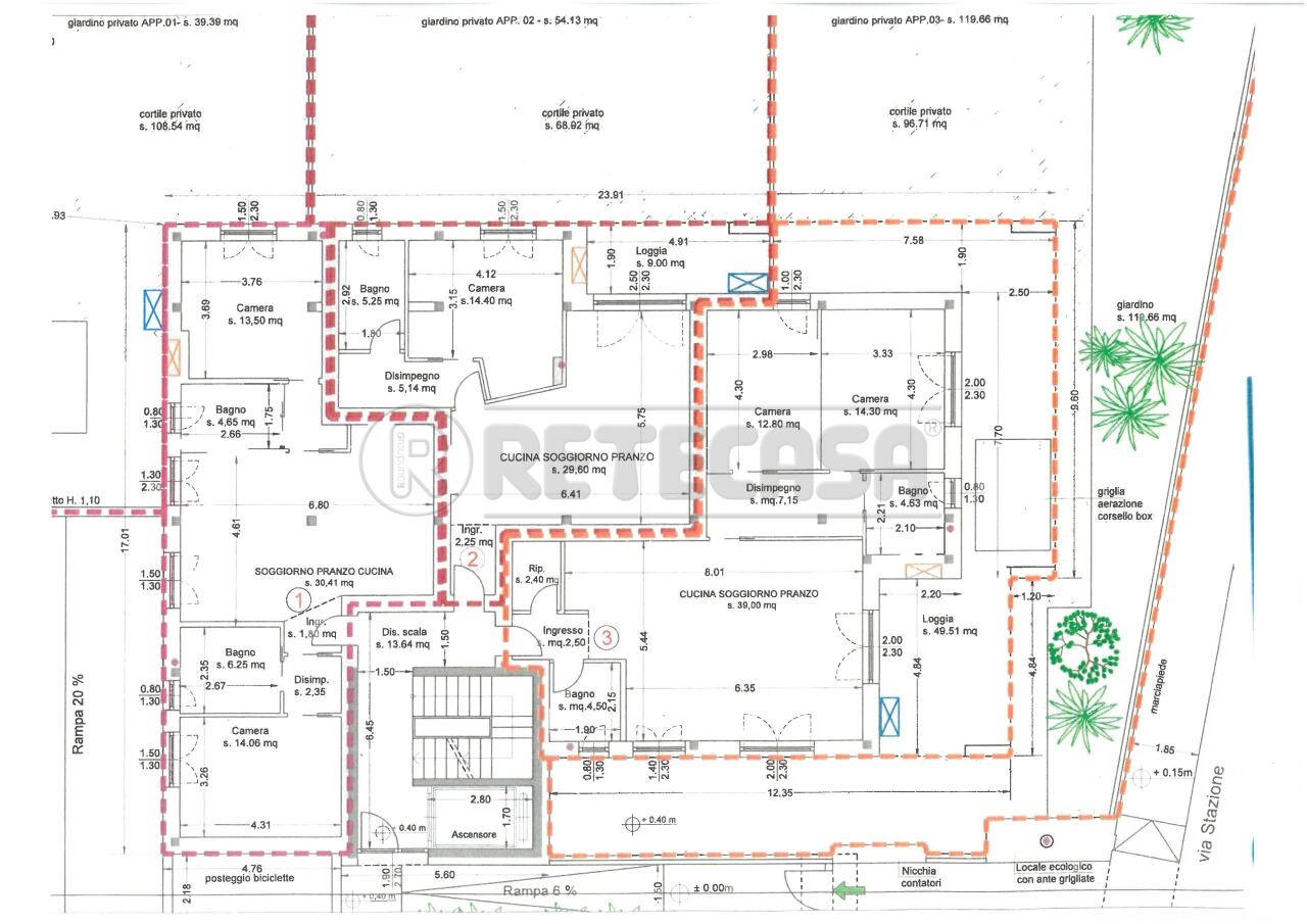
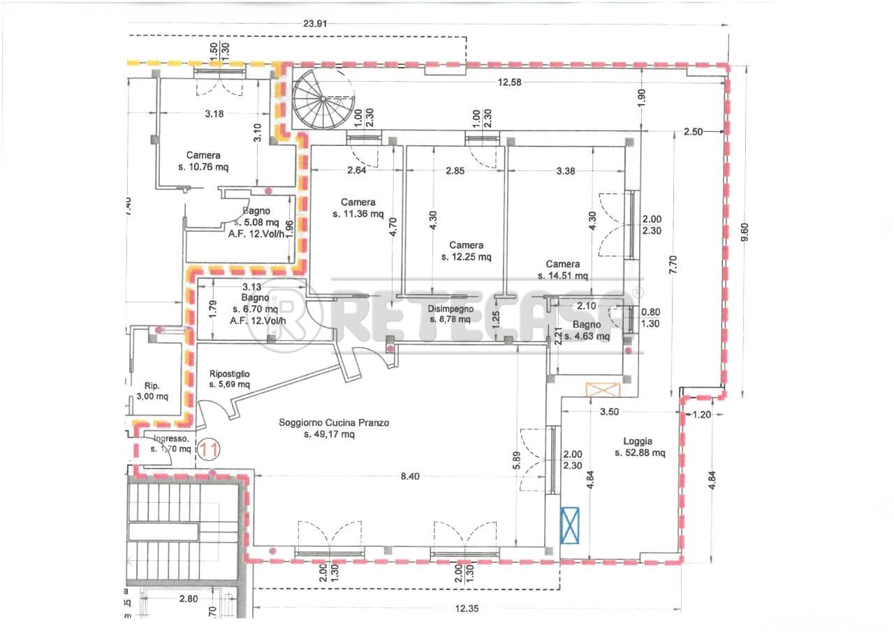
POSIZIONE CENTRALISSIMA, a due passi da Piazza Garibaldi, proponiamo PALAZZINA DI NUOVA COSTRUZIONE costituita da 12 unità immobiliari, ognuna dotata di box (singoli o doppi)
Al piano primo disponibile BILOCALE così composto: ingresso, ampio soggiorno con angolo cottura, disimpegno, camera matrimoniale e bagno.
Il bilocale gode di una bella LOGGIA sulla zona giorno attrezzabile per pranzi e cene all’aperto.
L’ abitazioni è servita da ascensore, le finiture interne sono a scelta dell’acquirente da capitolato di ottima qualità.
La costruzione prevede: impianto di riscaldamento a pavimento in pompa di calore, cappotto esterno da 15 cm, serramenti esterni in legno con tripli vetri basso emissivi, sistema di ventilazione meccanica, predisposizione A/C, zanzariere, tapparelle elettriche e impianto fotovoltaico.
TI ASPETTIAMO IN UFFICIO PER PRENOTARE LA TUA CASA DEL FUTURO!!!
Classe A3
Alcuni dati descrittivi dell’immobile potrebbero essere solo approssimativi (es: spese di riscaldamento, spese condominiali e divisione superfici) e pertanto verranno forniti in modo completo solo telefonicamente oppure in fase di appuntamento.
SI PRECISA che l’indirizzo pubblicato INDICA SOLO LA ZONA E/O LA DIREZIONE di ubicazione dell’immobile. Dettagli più precisi verranno forniti solo con contatto telefonico.
Per maggiori informazioni o visite contattare senza impegno i numeri 0373/1996506 o 329/6772411.
Se preferite, VENITE A CONOSCERCI DI PERSONA, ci trovate a Crema in Viale De Gasperi n. 25.
