Appartamento
Trilocale
Vendita
€ 410.000
Crema
(Cremona)
RIF. CREMA307t3loc
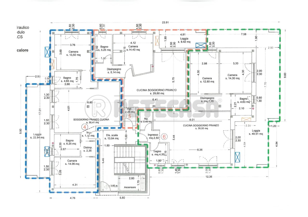
Superficie
181 mq
Camere
2
Bagni
2
Garage

DESCRIZIONE IMMOBILE

CREMA CENTRO IMPERDIBILE!!!! NUOVA COSTRUZIONE IN CLASSE A

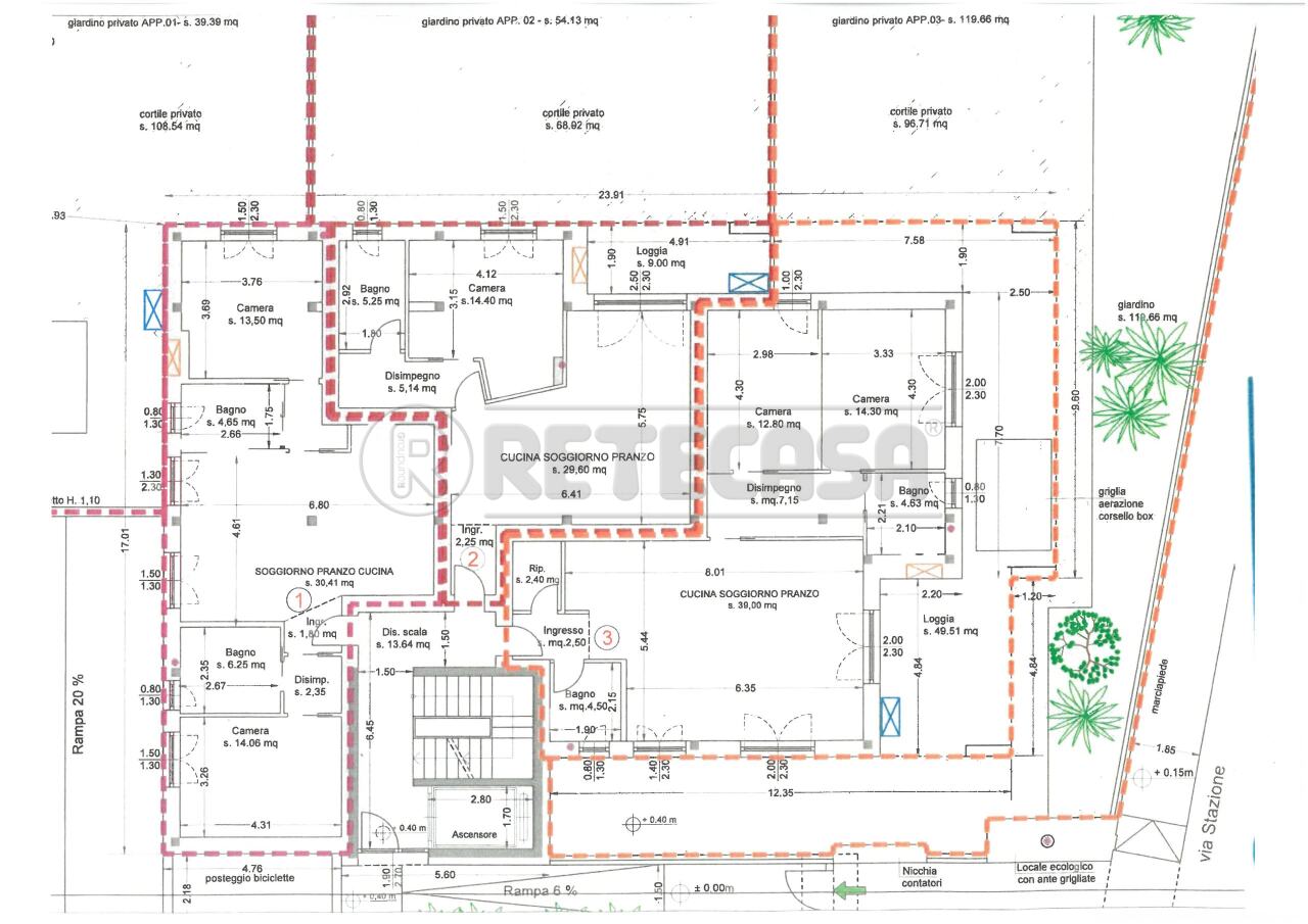
POSIZIONE CENTRALISSIMA, a due passi da Piazza Garibaldi, proponiamo PALAZZINA DI NUOVA COSTRUZIONE costituita da 11 unità immobiliari, ognuna dotata di box (singolo o doppio)
Al piano terra, disponibili TRILOCALE CON AMPIO GIARDINO PRIVATO e così composto: salone suddiviso in zona living e zona pranzo con cucina a vista, camera matrimoniale, camera singola grande, due bagni, ripostiglio e giardino/cortile privato ad angolo con ampio porticato.
NEL PREZZO E’ GIA’ INCLUSO UN COMODO BOX AUTO.
Le finiture interne sono a scelta dell’acquirente da capitolato di ottima qualità.
La costruzione prevede: impianto di riscaldamento a pavimento in pompa di calore, cappotto esterno da 15 cm, serramenti esterni in legno con tripli vetri basso emissivi, sistema di ventilazione meccanica controllata, predisposizione A/C, zanzariere, tapparelle elettriche e impianto fotovoltaico.
Classe A3

Alcuni dati descrittivi dell’immobile potrebbero essere solo approssimativi (es: spese di riscaldamento, spese condominiali e divisione superfici) e pertanto verranno forniti in modo completo solo telefonicamente oppure in fase di appuntamento.

SI PRECISA che l’indirizzo pubblicato INDICA SOLO LA ZONA E/O LA DIREZIONE di ubicazione dell’immobile. Dettagli più precisi verranno forniti solo con contatto telefonico.

Per maggiori informazioni o visite contattare senza impegno i numeri 0373/1996506 o 329/6772411.
Se preferite, VENITE A CONOSCERCI DI PERSONA, ci trovate a Crema in Viale De Gasperi n. 25.

Invia
Share
Share

Compila il form per contattare un agente

Altri immobili selezionati

RIF. CHIEVE06
Villa
Bifamiliare
Chieve
(Cremona)
Vendita
€ 280.000
CHIEVE Villa bifamiliare in CLASSE A In tranquilla zona residenziale, VILLA BIFAMILIARE LIBERA SU TRE LATI e...
Superficie
151 mq
Camere
3
Bagni
2
Garage
RIF. SER05-1
Appartamento
Trilocale
Sergnano
(Cremona)
Vendita
€ 135.000
NUOVO APPARTAMENTO di 3 LOCALI + servizi con GRANDE cucina abitabile + TERRAZZO coperto di 60MQ e...
Superficie
90 mq
Camere
n.d.
Bagni
n.d.
Garage
n.d.
RIF. CREMA-RISTR-01
Indipendente
Porzione di schiera
Crema
(Cremona)
Vendita
€ 185.000
Direttamente dall'impresa: porzione centrale di cascinetta completamente ristrutturata a nuovo, indipendente, su 2 livelli + mansarda (sottotetto...
Superficie
100 mq
Camere
n.d.
Bagni
n.d.
Garage
n.d.

INVIACI LA TUA CANDIDATURA