CREMA Viale Europa – zona Ipercoop EDIFICIO DI NUOVA COSTRUZIONE AD ALTA PRESTAZIONE ENERGETICA
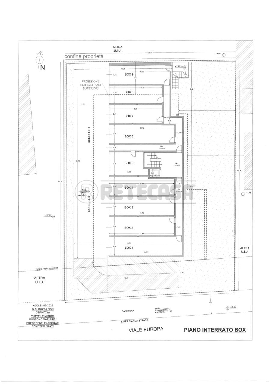
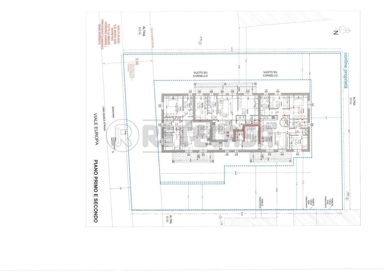
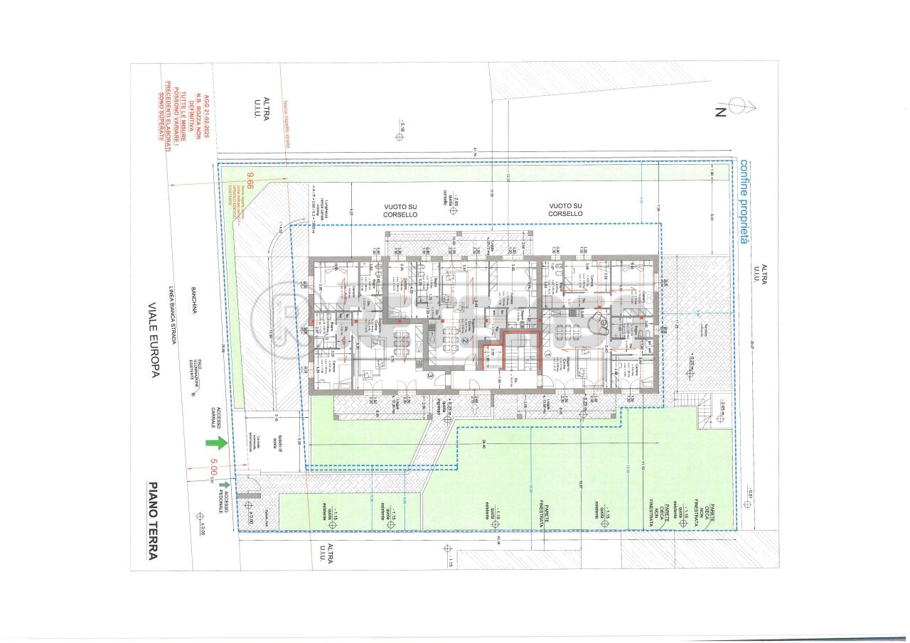
In posizione servitissima, nuovo condominio composto da 9 unità immobiliari di ampia metratura tutte dotate di giardini privati e/o spaziose logge e box doppi.
Ai piani terra e primo DISPONIBILI 4 TRILOCALI composti da ingresso, comoda zona giorno openspace con cucina a vista, doppi servizi, ripostiglio e due camere da letto. I trilocali sono dotati inoltre di giardino privato (piano terra) e/o loggia e di box doppio incluso nel prezzo.
La costruzione è INNOVATIVA, ANTISISMICA E PRIVA DI EMISSIONI DA COMBUSTIBILI FOSSILI.
Previsti riscaldamento a pavimento di ultima generazione in pompa di calore, impianto fotovoltaico da 3 kw, serramenti esterni in PVC con triplo vetro basso emissivo, cappotto esterno, predisposizione impianto di climatizzazione estiva a split idronici, predisposizione impianto antifurto, pavimenti in gres porcellanato e ceramica monocottura di prima scelta, sanitari sospesi, frangisole motorizzati con cassonetti, sezionale elettrica, portoncino di ingresso blindato e VMC puntuale.
Gli appartamenti avranno caratteristiche tali da poter rientrare nella CLASSE DI EFFICIENZA ENERGETICA “A” CERTIFICATA.
POSSIBILITA’ DETRAZIONI FISCALI.
Alcuni dati descrittivi dell’immobile potrebbero essere solo approssimativi (es: spese di riscaldamento, spese condominiali e divisione superfici) e pertanto verranno forniti in modo completo solo telefonicamente oppure in fase di appuntamento.
SI PRECISA che l’indirizzo pubblicato INDICA SOLO LA ZONA E/O LA DIREZIONE di ubicazione dell’immobile. Dettagli più precisi verranno forniti solo con contatto telefonico.
Per maggiori informazioni o visite contattare senza impegno i numeri 0373/1996506 o 329/6772411.
Se preferite, VENITE A CONOSCERCI DI PERSONA, ci trovate a Crema in Viale De Gasperi n. 25.
