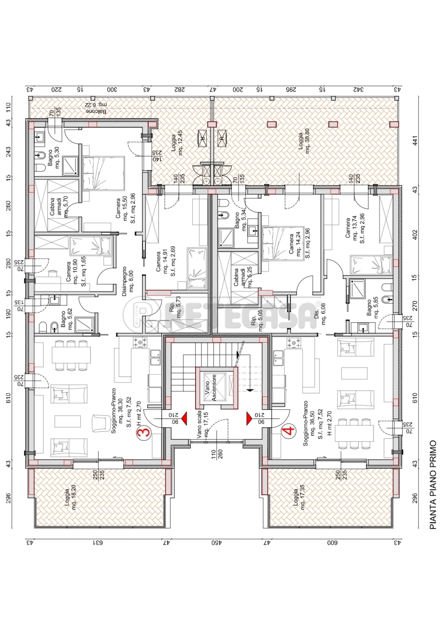
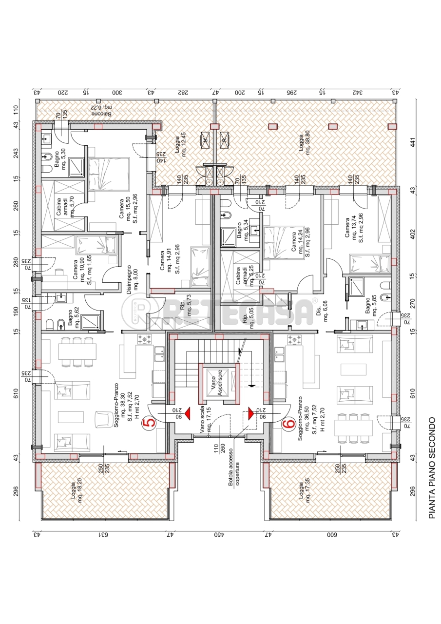
CREMA Nuovi TRILOCALI con ampie logge
In condominio di sole sei unità immobiliari, attualmente in costruzione, disponibili DUE TRILOCALI posti ai piani primo e secondo (ed ultimo) e così composti: spaziosa zona giorno openspace con angolo cottura affacciata su spaziosa loggia attrezzabile, disimpegno, ripostiglio con comodo angolo lavanderia, camera matrimoniale con cabina armadio e bagno en suite, seconda camera ampia e bagno padronale. La zona notte è affacciata sulla seconda grande loggia (38 mq). Il prezzo include inoltre un comodo box auto.
I trilocali godono di una tripla esposizione e i prezzi partono da € 386.000 + iva.
Il capitolato prevede: cappotto da 15 cm, riscaldamento autonomo a pavimento in pompa di calore, impianto fotovoltaico da 2 Kw per ogni abitazione, impianto di ventilazione meccanica controllata, serramenti PVC con triplo vetro, zanzariere, tapparelle elettrificate in alluminio, porta blindata, predisposizione condizionamento estivo, predisposizione allarme, impianto domotico per automazione tapparelle e termoregolazione, tinteggiatura interna,
basculanti sezionali elettrificate.
Classe A
N.B. Le immagini che mostrano gli ambienti arredati sono a puro scopo esemplificativo e generate con AI.
Alcuni dati descrittivi dell’immobile potrebbero essere solo approssimativi (es: spese di riscaldamento, spese condominiali e divisione superfici) e pertanto verranno forniti in modo completo solo telefonicamente oppure in fase di appuntamento.
SI PRECISA che l’indirizzo pubblicato INDICA SOLO LA ZONA E/O LA DIREZIONE di ubicazione dell’immobile. Dettagli più precisi verranno forniti solo con contatto telefonico.
Per maggiori informazioni o visite contattare senza impegno i numeri 0373/1996506 o 329/6772411.
Se preferite, VENITE A CONOSCERCI DI PERSONA, ci trovate a Crema in Viale De Gasperi n. 25.
